ayx爱游戏网站专注工业激光冷水机全国服务热线: 400-600-2093

ayx爱游戏网站:中粮北外滩壹号官方售楼处电话(中粮北外滩壹号)官方网站-营销中心欢迎您-楼盘详情最新价格-户型图-容积率-2026331售楼处

来源:ayx爱游戏网站    发布时间:2026-04-02 08:19:13 返回列表

产品参数

爱玩游戏ayx:

  您当前使用的浏览器版本过低,有几率存在安全风险,建议升级浏览器,或者用以下浏览器浏览

  中粮北外滩壹号官方售楼处电话(中粮北外滩壹号)官方网站-中粮北外滩壹号营销中心欢迎您-楼盘详情最新价格-户型图-容积率-2026.3.31售楼处

  中粮北外滩壹号官方售楼处电话(中粮北外滩壹号)官方网站-中粮北外滩壹号营销中心欢迎您-楼盘详情最新价格-户型图-容积率-2026.3.31售楼处

  ▸北外滩壹号售楼处地址:上海市虹口区东大名路1089号北外滩来福士东塔(看房请提前预约)

  【温馨提示】本项目唯一官方联系方式,看房请提前预约!现场销售接待!谨防中介虚假信息!

  中粮大悦城上海第五座壹号系,“世界S湾壹号作品”——【中粮·北外滩壹号】开盘热卖中!

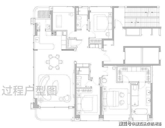
  独立玄关做足私密性和仪式感;LDKB一体化设计的客餐厅面积达到约55㎡,方正大气。

  主卧套房尺度豪奢,可供业主配置步入式衣帽间,卫生间做到双台盆+大浴缸+独立淋浴的顶配,尊崇感十足!

  【北外滩壹号官方售楼处咨询热线户设计,私享电梯厅独立入户,户型尺度进一步升级,当今顶豪新盘中极为稀缺的四开间朝南。

  项目四至范围:东至保定路、hk367-02、hk367-05地块,南至昆明路,西至hk367-03、hk367-04地块,北至唐山路。

  建筑立面,高层主体以仿红砖陶板+古铜色铝板+白色石材+玻璃幕墙的高标准结合,来完成建筑的美学表达。

  公区方面,从归家社区大堂、大堂序厅、以及入户单元大堂一路看过来,体现出一套脉络完整,层层递进的海派顶奢设计语言。

  【北外滩壹号官方售楼处咨询热线户,仍然通过深挖三层,满配了高达约1800㎡的私享顶奢会所。按户均占有会所资源计来算,这在当今顶豪圈是顶尖的水平。

  会所由全球顶奢酒店设计领域的标杆——CCD香港郑中设计事务所执笔。目前看到的效果图,体现出一股醇正的老钱世家风,设计品位远超市场同类豪宅。

  社交宴会区内,私宴、茶室与专属酒吧一应俱全,满足业主商务应酬到亲友小聚的各种场景需求。

  瑜伽健身区,大幅落地窗引入自然光线,天花的格栅造型,地面的复古拼花木地板,都透出浓厚的海派风情。

  雅集共聚区内,除了常规的阅读,棋牌等功能外,甚至设有一个舞蹈录音室,配置之高,沪上少见。

  因为这是中粮大悦城的壹号系,珠玉在前,小编完全不担心会所未来兑现的效果,甚至已经很期待看到未来会所开放展示的那一刻。

  景观方面,设计了「八大主题场景」,从百年梧桐下的静谧巷道,到充满未来感的艺术庭院,共同构成一个鲜活立体的生活剧场。

  交通方面:项目周围环绕三条地铁,步行约360米到4、12号线号线(在建)提篮桥站。地铁出行到人广和陆家嘴都只需要4站。未来,随着在建的南北大动脉19号线贯通,可以直达世博、前滩等多个核心滨江段。

  自驾上,项目往北约300米就是北横通道,往南车行约1公里,就是新建路隧道和大连路隧道直达浦东。从项目到陆家嘴、北外滩和外滩都在10分钟左右。

  商业方面:项目出门就是高浓度的国际生活主场,步行可达北外滩来福士(约600米)、瑞虹天地太阳宫(约350米)、白玉兰广场(约1公里),未来还将会兴建全球最火的时尚奢侈品商场之一的SKP。

  半径3km内,还可以同时覆盖外滩、陆家嘴、苏河湾等“黄金三角”的繁华商业!

  教育方面:周边学府众多,优质教育资源密集。北侧的长青学校是老牌的九年一贯制公办重点,南侧的上海中学国际部是知名民办名校,距离新华初级中学

  (常年四校八大预录人数上百),新复兴初级中学,这两所虹口的顶尖民办学校也都在直线KM内(新房不承诺对口学校,具体以实际为准)。

  医疗方面:周边有复旦大学红房子妇产科医院,守护着每一个家庭的人生重要时刻。、以及三甲新华医院、上海市第一人民医院为健康生活保驾护航。

  生态休闲:周边有22公顷无车漫步区、3.5万平方米航海公园与中央绿地相融,3.4公里滨江休闲岸线

  2026年2月25日,上海市五部门联合发布房地产新政“沪7条”,自2月26日起实施。新政从限购松绑、公积金优化、房产税减免三方面调整,非户籍居民外化内购房社保年限由3年缩短至1年,持居住证满5年可全市购房,公积金贷款额度最高提至324万,并放宽多子女家庭购房限制。一、进一步调减住房限购政策

  服务宜居安居,促进职住平衡,聚焦满足居民合理住房需求,《通知》明确进一步调减住房限购政策。

  一是缩短非沪籍居民购买外环内住房所需缴纳社保或个税年限。对非本市户籍居民家庭或成年单身人士购买外环内住房的,购房所需缴纳社会保险或个人所得税的年限,调整为购房之日前连续缴纳满1年及以上。

  二是符合条件非沪籍居民可在外环内增购1套住房。对在本市缴纳社会保险或个人所得税满3年及以上的非本市户籍居民家庭或成年单身人士,在执行现有住房限购政策基础上,可在外环内增购1套住房。

  三是符合条件的持《上海市居住证》群体可在本市购买住房。对持《上海市居住证》满5年及以上的非沪籍居民家庭或成年单身人士,在本市限购1套住房,无需提供缴纳社保或个税证明。

  按照上述规定,非沪籍居民家庭或成年单身人士,自购房之日前在本市连续缴纳社会保险或个人所得税满1年及以上的,在外环外购买住房不限套数,在外环内限购1套住房;连续缴纳社会保险或个人所得税满3年及以上的,在外环内限购2套住房。持《上海市居住证》满5年及以上的,在全市范围内限购1套住房。

  发挥公积金支持住房消费作用,满足缴存人在不同阶段的宜居安居需求,《通知》规定优化住房公积金政策。

  一是适度提高住房公积金最高贷款额度。将缴存人家庭购买首套住房的公积金贷款最高额度从160万元提高至240万元,叠加多子女家庭和购买绿色建筑最高贷款额度上浮政策(最高上浮35%),本市公积金家庭贷款最高额度可达到324万元。对购买第二套住房的最高贷款额度也相应予以提高。

  二是优化贷款套数认定。对于已使用过公积金贷款的本市缴存人家庭,在本市无住房或仅有1套住房、且当前已结清住房公积金贷款的,在本市再次购房时可申请公积金贷款。

  三是扩大多子女家庭购房支持范围。公积金贷款支持政策的适合使用的范围从购买首套住房拓展至购买第二套住房。即对多子女家庭购买第二套住房的,最高贷款额度在本市最高贷款额度基础上上浮20%。

  关于住房公积金贷款政策相关业务,可查询上海住房公积金官网或拨打住房公积金热线”具体咨询。

  支持居民置换改善需求,《通知》规定自2026年1月1日起,对本市户籍居民家庭中的子女成年后,购买住房属于成年子女家庭唯一住房的,暂免征收个人住房房产税。即对购房人于未成年时(或于本市个人住房房产税试点前)已与父母、(外)祖父母共同拥有住房的,在本市新购或置换住房后,该住房仍属于成年子女家庭唯一住房的(除上述共同拥有住房外),暂免征收个人住房房产税。

  购房人家庭住房情况出现变化,符合上述条件的,可向应税住房所在地税务机关重新办理个人住房房产税纳税信息申报、认定,从税务机关重新认定之次月起调整纳税,并退还所属期在2026年1月1日以后多缴纳的税款。

  此次调整涉及调减住房限购、优化住房公积金贷款、完善个人住房房产税等政策。下为购房政策调整前后的对比情况,供大家查阅:

  Q本次调整中非沪籍居民家庭和单身人士,社会保险或个人所得税满足1年或者3年的要求?

  A①以上满1年是指购房网签合同前1个月满足连续15个月累计12个月的社会保险或者个人所得税;

  ②以上满3年是指购房网签合同前1个月满足连续39个月累计36个月的社会保险或者个人所得税。

  Q持满足条件《上海市居住证》群体可在本市购买住房的,《上海居住证》满足什么条件?

  A网签合同之前1个月《上海居住证》累计满5年即可、无需连续,且持有《上海市居住证》人员必须上产证。

  Q满足120积分上海长期居住证且连续满足3年社保或个人所得税的非沪籍成年单身人士,是否可剔除限购前和父母住房?

  Q此次政策调整何时生效,如果之前已经申请了公积金贷款,是不是就无法享受到此次贷款额度上调的政策支持了?

  A2026年2月26日前受理的公积金贷款按原政策执行,2026年2月26日(含)后受理的公积金贷款按调整后的政策执行。

  2026年2月26日前已受理但未发放的公积金贷款,借款申请人与购房合同各方协商一致的,可向贷款受理机构申请撤销原贷款申请,按照调整后的贷款条件、额度等政策重新申请公积金贷款,具体可咨询公积金贷款受理机构。

  Q按照最新的政策,缴存人在本市购买住房申请公积金贷款,最高贷款额度是多少?

  A缴存人在本市购买首套住房的,个人公积金最高贷款额度(含补充公积金最高贷款额度,下同)可达120万元,家庭公积金最高贷款额度可达240万元;在本市购买第二套住房的,个人公积金最高贷款额度可达100万元,家庭公积金最高贷款额度可达200万元。

  同时,多子女家庭购房(上浮20%)和购买符合条件的绿色建筑住房(上浮15%)的公积金最高贷款额度上浮比例保持不变,同时符合多种上浮条件的,上浮比例可叠加,即最高可上浮35%。

  Q夫妻双方在本市缴存住房公积金,名下各有一次公积金贷款且均已结清,再次购房时可以申请公积金贷款吗?

  A在本市无住房或仅有一套住房的本市缴存人家庭,当前公积金贷款已结清且符合其他贷款条件的,在本市再次购房时,可申请公积金贷款。

  A首套住房:缴存人家庭申请公积金贷款购买住房时,家庭名下在本市无住房或者购买共有产权保障住房的;

  第二套住房:缴存人家庭申请公积金贷款购买住房时,家庭名下在本市已有一套住房的。

  Q夫妻双方在本市缴存住房公积金,名下各有一次公积金贷款且均已结清,再次购房时可以申请公积金贷款吗?

  A在本市无住房或仅有一套住房的本市缴存人家庭,当前公积金贷款已结清且符合其他贷款条件的,在本市再次购房时,可申请公积金贷款。

  A缴存人家庭在本市或外省市有未结清的公积金贷款的,不予贷款。如本市缴存人家庭名下在本市或外省市有未结清的公积金贷款,但符合其他贷款条件的,可以先行结清已有贷款,再申请公积金贷款。

  (1)符合《住房城乡建设部关于住房公积金异地个人住房贷款若干具体问题的通知》规定的异地贷款使用条件,即当前未使用过公积金贷款或首次公积金贷款已结清;

  Q客户A上海单身,在2011年1月28日之前跟上海父母在徐汇共有一套住房90平,2015年又买进一套浦东新区的住房60平,现在卖掉浦东的住宅,再买一套50平的住宅,本次购房是否仍然可以享受成年子女首套免征房产税?

  A自2026年1月1日起,对本市户籍居民家庭中的子女成年后,购买住房属于成年子女家庭唯一住房的,暂免征收个人住房房产税。

  Q客户A上海单身,在未成年时跟上海爷爷在徐汇共有一套住房90平,2015年又买进一套浦东新区的住房60平,现在卖掉该住宅,再买一套50平的住宅,本次购房是否仍然可以享受成年子女首套免征房产税?

  A购房人未成年时(或于本市个人住房房产税试点前)已与父母、(外)祖父母共同拥有住房的,在本市新购或置换住房后,该住房仍属于成年子女家庭唯一住房的(除上述共同拥有住房外),暂免征收个人住房房产税。

  A购房人家庭住房情况发生明显的变化,符合上述条件的,应向征收房产税的住房所在地税务机关重新办理个人住房房产税纳税信息申报、认定,从税务机关重新认定之次月起调整纳税,并退还所属期在2026年1月1日以后多缴纳的税款。

  2024苏州高新区改善新盘芳菲澜院【官方认证】芳菲澜院售楼处电话+最新动态+户型+位置+学区+配套+图文详解

  目前,芳菲澜院主力在售建面约270㎡和300㎡的联排别墅,具体价格待定,但已开启诚意登记,近期到访咨询更有机会锁定开盘专属优惠。约1.0的超低容积率,在城里做出了一片稀有的低密别墅区,把城市繁华、太湖山水和南

  2026绿城沁百合最新评测绿城沁百合官方认证售楼处电话+户型+位置+学区+配套图文详解

  总结起来,绿城沁百合的核心优势非常清晰:第一是绝版地段,正宗奥体核心区,各项顶级配套环抱;第二是纯粹产品,整个小区都是低密洋房,容积率仅约1.8,总共才296户,非常稀缺;第三是绿城品牌,有之前多个爆款项目的

  2026最新楼盘评测云栖海棠里【官方认证】云栖海棠里售楼处电话__最新动态+图文详解+户型+位置+学区+配套+怎么样?

  据悉,项目即将入市,首推建面约179㎡纯粹洋房及278-286㎡城芯联排,仅57席,堪称姑苏改善市场的“压箱底”藏品。8栋联排别墅加2栋洋房,总共才57户,这不仅是对土地的尊重,更是对高端居住品质的坚持,确保

  2026最新楼盘评测山岚璟庭【官方认证】山岚璟庭售楼处电话_最新动态+图文详解+户型+位置+学区+配套+怎么样?

  项目目前在售建筑面积约105-148㎡新中式洋房,均价约29500元/㎡,全屋精装交付,近期到访更有专属优惠礼遇,机会不容错过。社区里还为全家人考虑了活动空间:孩子们有游乐场,年轻人有跑道和健身区,长辈们有林

  绿城桃源里最新动态绿城桃源里官方认证售楼处电话+图文详解+户型+位置+学区+配套+怎么样?

  项目目前主力在售建面约195-213㎡的宋风叠加别墅,以及建面约200-660㎡的中式合院,每一席都是珍藏级的改善住宅作品。建面约195-213㎡,它用现代手法演绎宋代美学,有大面积的玻璃框景,有独特的屋檐设

  中铁咏月台(售楼处地址) 官方 2026- 中铁咏月台销售中心 - 环境 - 户型 - 价格 - 地址 - 楼盘详情 - 配套 - 电话 - 交房时间 - 配套 - 电线

  太古源源邸官方售楼处电话(太古源源邸)官方网站-太古源源邸营销中心欢迎您-楼盘详情最新价格-户型图-容积率-2026.3.5售楼处

  璟澜湾(售楼处地址) 官方 2026- 璟澜湾销售中心 - 环境 - 户型 - 价格 - 地址 - 楼盘详情 - 配套 - 电话 - 交房时间 - 配套 - 电线

  热门推荐-绿城苏州凤起潮鸣(售楼处)-绿城苏州凤起潮鸣是否值得购买?图文详解-旁边的环境-户型图-周边配套-地址-优劣势分析-学区-价格

  中交凤启虹桥官方售楼处电话(中交凤启虹桥)官方网站-中交凤启虹桥营销中心欢迎您-楼盘详情最新价格-户型图-容积率-2026.3.3售楼处

  花语云萃官方售楼处电话(花语云萃)官方网站-花语云萃营销中心欢迎您-楼盘详情最新价格-户型图-容积率-2026.3.7售楼处

  「泊印澜庭」售楼处│2026上海官方营销中心官网-楼盘详情-价格/户型图/地址/配套/交房时间/咨询电线

  热门推荐-建屋紫云庭(售楼处)-建屋紫云庭怎么样?图文详解-旁边的环境-户型图-周边配套-地址-优劣势分析-学区-价格

  上江南贤庐(上海)上江南贤庐售楼处电话_上江南贤庐预约看房_楼盘详情-最新房价-户型图(2026年)上江南贤庐售楼处电线

  中海环宇玖章官方售楼处电话中海环宇玖章售楼中心电线中海环宇玖章楼盘百科楼盘网站楼盘测评售楼中心电话楼盘百科电话楼盘详情


上一篇:包河区中国铁建花语江南地址电话路线周边在哪怎样_百度地图
下一篇:2025-2026冷水机厂家最新推荐技术实力与市场口碑深度解析